6年前,青衣江桥头还没有金螺湾生态公园。
但桥头的希望城4号地块玫瑰湾横空出世,绝佳的正临湖位置,只有大户型,建面126-280㎡的板式洋房+临湖高层。那段时间,能买到玫瑰湾的,都还要找点门路才得行,因为房子太抢手。

但是,就跟玫瑰湾同在一张效果图上的酒店,就没得那么幸运了。

2012年6月28日,酒店破土动工。 2014年6月18日,喜来登宣布与希望城签约。
当年的效果图看起相当高大上的,来,回忆一下,你可能都曾在各大街头广告位上看到过它当年的身影。




不过,由于种种原因,这么多年过去了,酒店还是这个样子。

就连它楼下的商业现在都是满扑扑的商家,尤其是那个小烧烤啊烤肉啊火锅啊味道还是相当不错。 走远了点。 旌湖水滚滚而去,前尘过往就不多言,今天要给大家说的消息是,这个酒店可能会在近期再动工,目前新的优化方案正在公示中来看哈这个酒店会咋个修。


1、本次修改只对酒店内部进行调整,外立面仅有微小变化。
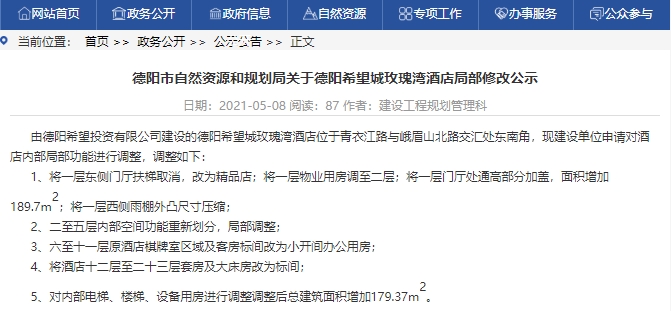
2、酒店一层部分商业增加,将二层无隔断开敞式商业全部集中于一层改为有隔断的小型商铺。

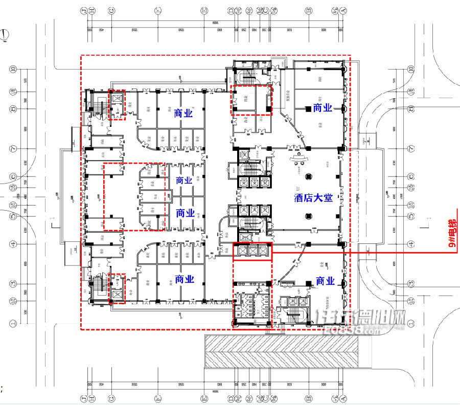
3、二层无商业后,原到达至二层的扶梯取消,架空部分去掉,二层建筑面积增加189.70㎡。西侧酒店两层通高大堂分隔并增加走道,以分流酒店入住与宴会人群。由于办公、酒店和研发类建筑标准层高不应大于4.2 米,建筑公共部分的门厅、大堂、中庭等有特殊功能需要的建筑通高部分按照一层计入计容建筑面积。通道部分增加建筑面积43.26㎡。

2层
4、将原放置于一层的物管用房及业主议事用房移至二层,面积由原来的71.00㎡,变为现在76.56㎡。
5、为满足更大人流交通以及卫生间使用需求,对一~五层原9#电梯及一层卫生间进行调整。

3层

4层

5层
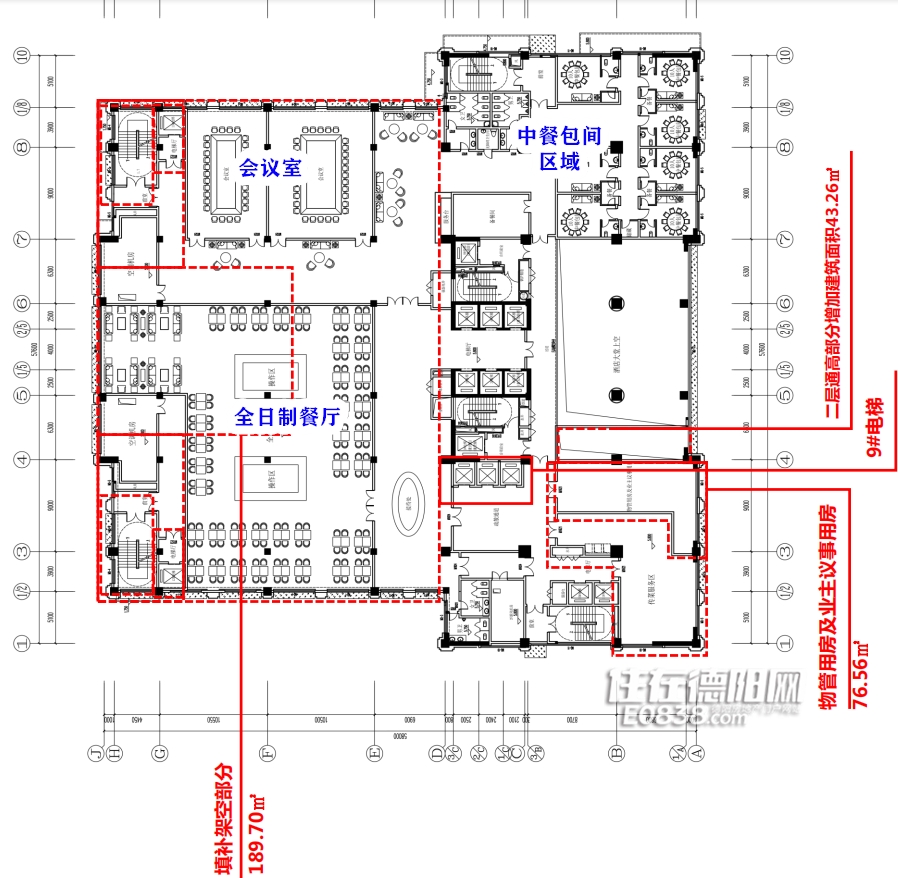
6、将二层商业取消,五层全日制餐厅移至二层,同时将原二层包间移至四层;六层棋牌室移至五层。
7、三层西侧入口雨棚由原来的进深9.5m改为4.1m,建筑面积减少59.15㎡ 。
8、将六~十一层原酒店棋牌区域、标间改为小开间办公用房。

6层

7-11层

12-18层
9、对二十一层管道转换层位置进行调换。
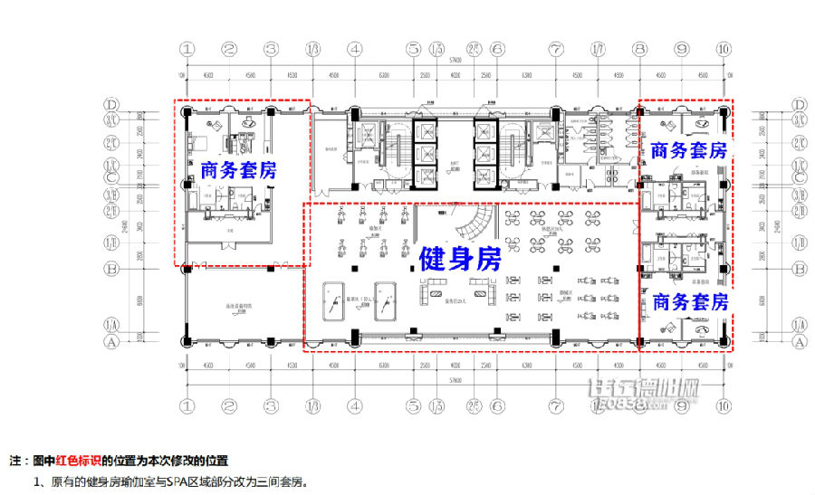
10、将十九、二十、二十一层改为标间层,二十二层原spa、健身部分区域增加三间套间。满足酒店客房数在200间以上,酒店部分建筑面积大于6000 ㎡ 。

19层

20层

21层

22层
11、十二至二十二层客房区域,在满足酒店过道宽度使用需求的条件下,适当增加消毒间、弱电面积,走道净宽由原来3.2m改为2.6m。
12、五层设备转换层与二十三至顶层平面未做修改。

言而总之。
如果能在不久之后,希望城酒店能重新修建成功,那对于酒店所在的黄河片区,尤其紧邻的旌北新区楼盘越来越多的楼市境况下,一座高规格的酒店带来的联动利好效应将是巨大的。

来源:德阳说房-老乔